如有疑问请登陆平台发送站内讯息
注册线路A
注册线路B
注册线路C
建议Ctrl+D收藏本页,以备需要时找不到
帝景海岸四房精装样板间-杏盛海口公司官网
海口公司
[切换]
首页
设计案例
选设计师
全国网点
工程管控
环保材料
家装攻略
杏盛优品
关于杏盛
全国装修热线
800-52617-001
当前位置 :
首页
>
精品案例
>
帝景海岸四房精装样板间
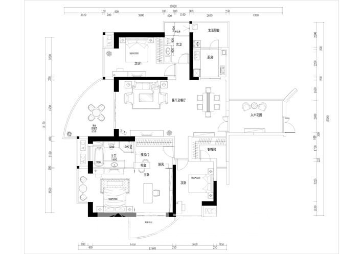
帝景海岸四房精装样板间
浏览人数: 14121 次 更新时间: 2017-03-13 14:41:59
案例风格 :
其它
案例户型 :
四居
案例面积 :
200平米
设计理念
客厅
客厅
1张
餐厅
餐厅
1张
厨房
厨房
1张
洗手间
洗手间
1张
主人房
主人房
1张
书房
书房
1张
客房
客房
2张
案例展示
案例展示
2张
相关案例
""
企业会所园林
新中式 | 1200 | 公装
葫芦娃药业集团美安智造办公大楼
现代简约 | 10000 | 公装
观澜湖澜墅
其它 | 230 | 别墅
本案例设计师
陈志潇
总监设计师
所在城市: 海口市
案例数: 8
全部案例
找他设计
本案例服务店面
海口公司
所在城市: 海口市 | 案例数: 109
进店看看
装成这样需要多少钱 ?
价格保障
流程保障
设计保障
环保保障
施工保障
售后保障
权益保障
关于杏盛
杏盛历程
杏盛图片
杏盛视频
杏盛图书
杏盛导报
联系杏盛
品质服务
工程管控
环保材料
家装分期
杏盛优品
杏盛软装
香港皇朝家私
新闻动态
企业动态
杏盛故事
关注我们
杏盛公众号
关注杏盛注册APP
装修热线
0898-68538000
时间:周一至周五 9:00-17:30
海南省海口市龙华区海秀中路140一1号朗枫国际商业楼四层(杏盛)
Copyright © 2023 杏盛 版权所有 |
老房
㎡
新房装修
旧房改造
预约看工地
客户报修
设计方案
返回顶部
新房装修
高品质毛坯装修,旧房、二手房改造
新房
旧房
㎡
*
为了您的权益,您的一切信息将被严格保密
预约参观工地
看看别人家怎么施工的
信息保护中
请放心填写
*
将有工作人员与您联系,提供专属服务
预约全屋装修
量身定制理想家
信息保护中
请放心填写
*
将有工作人员与您联系,提供专属服务
免费量房
全面精准测量 合理规划户型空间
㎡
信息保护中
请放心填写
*
将有工作人员联系,确认量房时间
免费提供设计方案
多种设计风格任您选择
选择您喜爱的风格
*可多选
现代简约
轻奢
中式
美式
其他
信息保护中
请放心填写
*
将有工作人员与您电话联系,安排设计师
算一算,你家装修要花多少钱?
免费获取装修报价
1
/3
选择您喜欢的风格
现代简约
轻奢
中式
美式
欧式
其他
2
/3
选择房屋面积
80-100㎡
101-200㎡
201-300㎡
301-600㎡
600㎡以上
3
/3
选择房屋面积
两居室
三居室
四居室
五居室
六居室
信息保护中
请放心填写
预约设计师
预约设计师,定制您喜欢的设计方案
信息保护中
请放心填写
客户报修
省/市
城市